Vente Terrain 415 m2 à Bourgoin-Jallieu

135 000 €

Détails de l'annonce

Référence 85490844 - Mise à jour le 19/02/2026

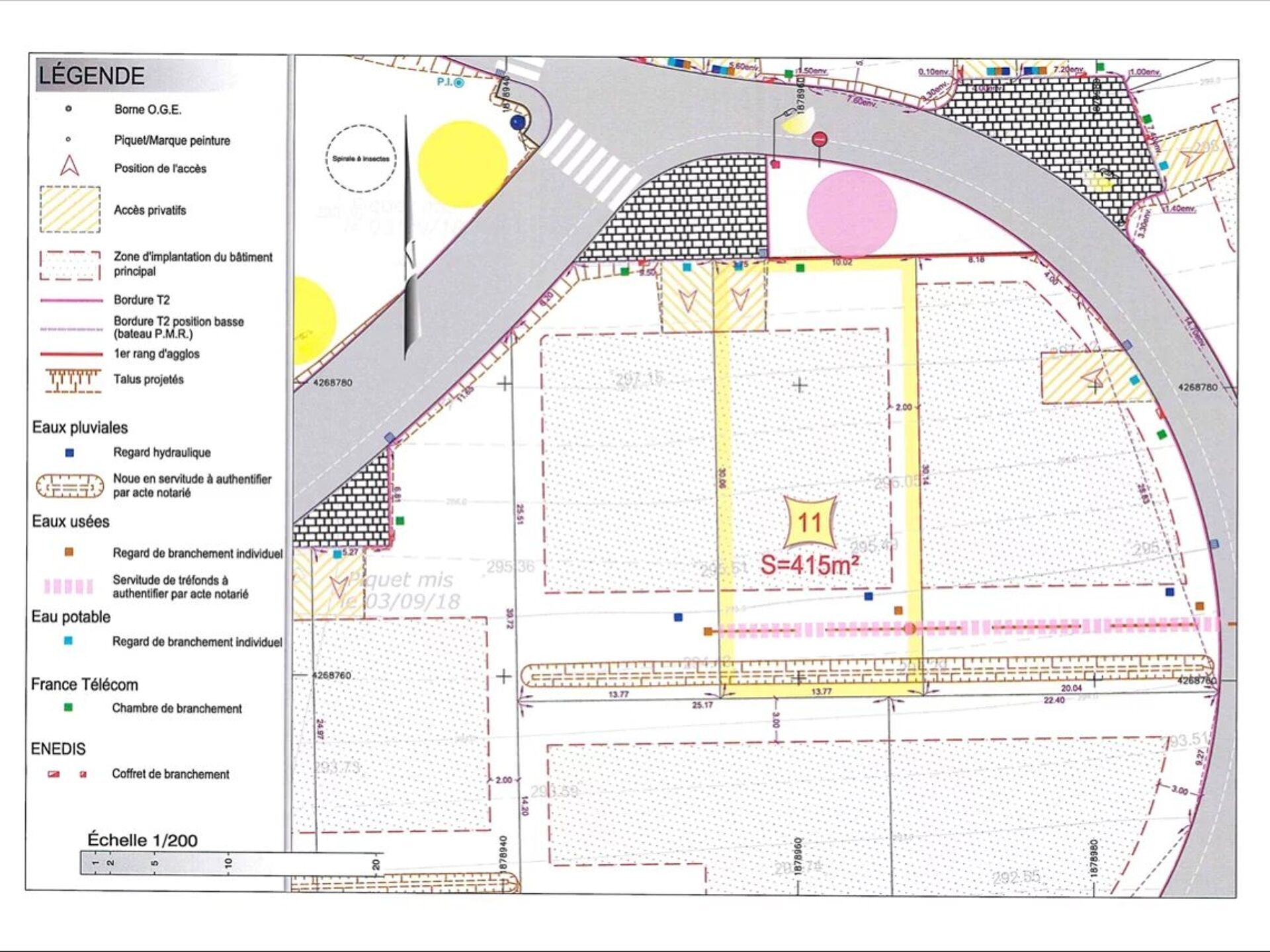
Terrains constructibles : BOURGOIN JALLIEU
Sur la commune de Bourgoin-Jallieu : terrains constructibles !

- Libre constructeur et déjà viabilisé.
- 2 lots en Vente : Lot n°10 404m2 et Lot n°11 415m2

N'attendez plus pour saisir cette opportunité unique !

Spécialiste du terrain à bâtir depuis plus de 30 ans l'agence du réseau arthurimmo.com 35 rue de la république 38300 BOURGOIN JALLIEU dans le secteur Nord-Isère.

Caractéristiques de ce bien

  • Surface terrain
    415 m²
  • Orientation
    sud
  • Tout-à-l'égout
    Oui
  • Altitude
    274
  • Référence
    85490844

À propos du prix

Acheter ce bien avec Arthurimmo.com Financement
135 000 €

Bilan énergétique

Géorisques

Les informations sur les risques auxquels ce bien est exposé sont disponibles sur le site Géorisques : www.georisques.gouv.fr

Ce bien vous est proposé par

Remi SANCHEZ
Conseiller immobilier
Remi SANCHEZ
35 rue de la République
38300 Bourgoin-Jallieu
4.7
(405 avis )
Ajouter un commentaire (facultatif)

Soyez le premier informé !

Recevez en temps réel les annonces correspondant à votre recherche.